Villa Morna Valley | San Lorenzo
A beautiful villa with an even more beautiful view! The house is nestled against a mountain and looks out over the Morna Valley and half of Ibiza. It has a lovely swimming pool (11 x 5.5 metres), a beautiful terrace and a fantastic outdoor kitchen. In short: Villa Morna Valley comes highly recommended. This house is owned by the same people who own Sitges and Xumeu. They take great care of their properties, so you are guaranteed a good holiday!
The location is central: a two-minute drive to Atzaro, 5 minutes to the Las Dalias market and 10 minutes to Santa Eulalia. The north's most beautiful beaches, such as Cala Nova and Cala Llenya are only 15 minutes away.
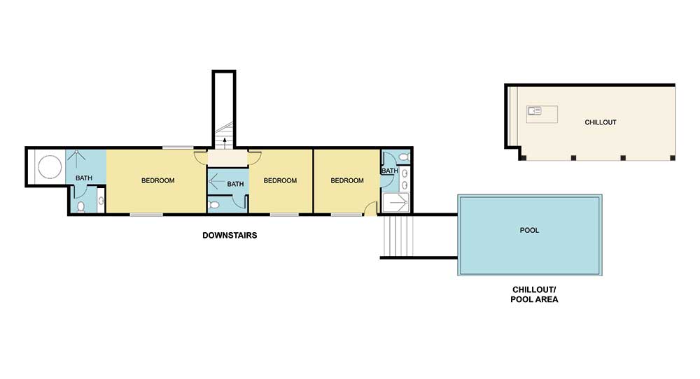
You must have been here to experience the view. Inside, each room is individually decorated, with spacious bedrooms and bathrooms. The outdoor kitchen with large dining table completes this villa!
1x p.w. change of towels.*final cleaning always included
Bedrooms
Included with your stay
Facilities
Always included: bedlinen, final cleaning, bath towels.
Location
More information about this villa
Check in
From 16:00Check out
Before 10:00Cancellation
Within 24 hours after booking you can cancel free of charge. After that there are cancellation costs.
Each cancellation must be communicated as soon as possible by e-mail and will incur costs. In case of No Show, the costs amount to 100% of the rental price and no refund will be made. The costs for cancellation are calculated as follows:
- more than 42 days before arrival: The amount of the deposit: 30% of the total price.
- between 42 and 28 days before arrival: 60% of the total price.
- from 28 days before arrival: 100% of the total price.
It is not possible to exchange a house at a later time for another house. The cancellation policy remains in force.
Payment
Pay 30% at booking and the remaining 70% 6 weeks before departureDeposit
€1,000.00License
ETV-1792-E / ESFCTU00000703600001895300000000000000000000ETV1792E1What other guests thought of this property
Villa Morna Valley
Benefits of Covered Homes
- Inespected villas
- Personalized service
- Local experts
Local expertise, backed up by guarantees
- 24/7 support
- Personal check-in
- Secure booking




































